Недвижимость Болгарии - дома, квартиры, земля, инвестиции и бизнес, коммерческая недвижимость

Ref No: 959, Обзор, Апартамент/Квартира, 162350 EURO
Продажа



Жилая площадь: 95  m2
Этаж: 2 этаж
Завершенность: Введенное в эксплуатацию, мебелированное
Вид недвижимости: недвижимость на побережье

Особенности:
Лифт, На море, Кабельное телевидение, Интернет, Балкон, Бассейн, Кондиционер




Недвижимость
Дополнительная информация:

МЕСТОПОЛОЖЕНИЕ: гр. Обзор, първа линия.

ТИП НА АПАРТАМЕНТА: тристаен апартамент.

ЕТАЖ: 2 от 4.

АСАНСЬОР: да.

ОБЩА ПЛОЩ: 95,5 кв. м, ЧИСТА ПЛОЩ: 83 кв. м.

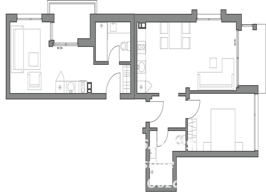
РАЗПРЕДЕЛЕНИЕ: входно антре, хол с кухненски бокс, две самостоятелни спални, две отделни бани и тоалетна и две открити тераси.

СЪСТОЯНИЕ: «до ключ» (стените са боядисани, положени са подови настилки, монтирана е санитарията, поставени са контакти и осветление, инсталирани е климатици).

ОБЗАВЕЖДАНЕ: необзаведено.

КОМПЛЕКС РАЗПОЛАГА: охрана, басейн, снек бар, зони за отдих с люлки и шезлонги, детска площадка, паркинг, асансьор, собствен участък от плажа с шезлонги и чадъри.

ТАКСА ПОДДРЪЖКА: 18 евро/кв. м на година + 150 евро (ремонтен фонд);

при отдаване под наем – 20 евро/кв. м на година + 300 евро (ремонтен фонд).

СГРАДАТА Е ВЪВЕДЕНА В ЕКСПЛОАТАЦИЯ (има Акт 16).

 

БЕЗ КОМИСИОНА ОТ КУПУВАЧА!!!

Тристаен апартаментът е разположен в луксозен комплекс в горската крайбрежна зона на Обзор, на тихо и спокойно място.

Апартаментът е с отлична оптимизация на пространството. Особено подходящ е за големи семейства с деца.

Всички стаи са самостоятелни.

От едната тераса се открива гледка към басейна на комплекса, от другата - красива панорамна гледка към морето и към градина на комплекса.

Апартаментът се продава с довършителни работи «до ключ» и без мебели и техника, което ви позволява да го обзаведете по ваш вкус.

Комплексът е построен с най?висококачествени материали и разполага с отлична инфраструктура. На 50 метра от входа на комплекса се намира плажната ивица, до която се стига по стълба. Живописният и уединен плаж предлага безплатни чадъри и шезлонги, предназначени единствено за собствениците на апартаменти в комплекса.

Идеален за хора, които търсят тишина и спокойствие по време на почивка на морето!

В същото време на 10 минути пеша от комплекса се намират аквапарк, SPA?център и ресторанти, което дава възможност на всеки да се наслади на пълноценна ваканция в непосредствена близост до всички необходими удобства.

Апартаментът представлява отлична възможност за тези, които планират да закупят жилище на морето или да инвестират с цел отдаване под наем.

 

За оглед и по всички въпроси: 0878-629-789

Говорим БЪЛГАРСКИ, РУССКИЙ, ENGLISH

 

РАЙОННА АГЕНЦИЯ ЗА НЕДВИЖИМИ ИМОТИ в Бяла и Обзор.

Офиси:

град Бяла, ул.Хан Омуртаг 24

град Обзор, ул.Славянска 65 А

 

Местоположение: г. Обзор, первая береговая линия

Тип квартиры: трехкомнатная квартира

Этаж: 2-ой этаж (не последний), лифт

Общая площадь: 95,5 кв.м.

Жилая площадь: 83 кв.м.

Мебелировка: нет

Вид из окон: внутренней двор комплекса и панорамный вид на море

Цена квартиры: 162 350 EUR

В комплексе: парковка, охрана, лифт, бассейн, бар, зоны отдыха, детская площадка, собственный пляж с шезлонгами и зонтиками

Сбор за обслуживание: 18 евро / кв.м в год + 150 евро (ремонтный фонд);

при сдаче в аренду - 20 евро / кв. м в год + 300 евро (ремонтный фонд).

Здание введено в эксплуатацию (есть Акт 16 – «Удостоверение о вводе здания в эксплуатацию»)

 

Просторная трехкомнатная квартира расположена в роскошном комплексе на первой береговой линии, в лесной части прибрежной зоны г. Обзора.

Прекрасное предложение для больших семей с детьми.

Отлично продуманная планировка квартиры состоит из коридора, гостиной с зоной кухни, двух спален, 2 совмещенных санузлов и двух балконов. Все комнаты изолированные.

С одного балкона открывается вид на внутренний двор комплекса, с другого - красивый панорамный вид на море и на сад комплекса.

Квартира продается в степени «чистовая отделка», без мебели и техники. Ванные комнаты полностью оборудованы, подключена вся сантехника: раковина, душевая кабина, унитаз. Стены и потолки в комнатах отштукатурены и покрашены, полы покрыты ламинатом и плиткой. Установлены внутренние двери, розетки, потолочные светильники и кондиционеры. 

Это позволит вам обставить квартиру мебелью по своему вкусу.

Уютный и современный комплекс построен по индивидуальному дизайнерскому проекту с использованием высококачественных материалов. Комфортные апартаменты, продуманная инфраструктура комплекса и расположение в лесной зоне у моря создают идеальные условия для отдыха.

На огороженной и ухоженной территории имеются - бассейн, зоны отдыха и детская площадка. 

Комплекс расположен на скалистом берегу, в 50 м от песчаного пляжа. Вдоль поросшей соснами скалы к живописному и уединённому пляжу ведёт пологая лестница. Для проживающих в комплексе зонты и шезлонги на пляже бесплатны.

Отсутствие городского шума, красота окружающей природы, близость моря и комфортабельное жилье создают идеальные условия для расслабления и полноценного отдыха.

В тоже время, в 10 минутах ходьбы от комплекса расположен аквапарк, SPA?центр и рестораны.

Это предложение отличная возможность для тех, кто планирует купить жилье для отдыха на морском побережье или для выгодной сдачи в аренду.

Инфраструктура комплекса:

- ухоженная территория

- открытый бассейн

- зоны для отдыха

- детская площадка

- лежаки и зонтики на пляже бесплатны

- лифт

- круглосуточная охрана

- парковка

Этаж

Тип

квартиры

Планировка

Мебель

Жилая

площадь

кв.м.

Общая

площадь

кв.м.

Цена

ЕВРО

2

Трехкомнатная квартира

Коридор, гостиная с зоной кухни, 2 спальни, 2 ванные комнаты и 2 террасы

нет

83 кв.м.

95,5 кв.м.

162 350

 

По вопросам показа квартиры и всем интересующим вопросам можете звонить или писать на WhatsApp или Viber на болгарский номер: +359-878-629-789 – Татьяна Шебалина.

 

РАЙОННОЕ АГЕНТСТВО НЕДВИЖИМОСТИ В БЯЛЕ И ОБЗОРЕ, БОЛГАРИЯ.

Офисы:

Болгария, г.Бяла, ул.Хан Омуртаг 24

Болгария, г.Обзор, ул.Славянска 65А


Получите консультацию прямо сейчас по телефону в Болгарии +359 878 629 789

Отправить вопрос об этом объекте недвижимости: Вы можете написать нам письмо на realty.invest.bg@gmail.com либо заполнить следующую форму:

Имя:
E-mail:
Телефон:
Вопрос:
Rambler's Top100

Вся недвижимость Болгарии: недвижимость болгарии, недвижимость в болгарии, болгария недвижимость, квартиры болгарии, дом в болгарии, купить недвижимость в болгарии, квартиры, дома, земля, инвестиции, бизнес